聯系人:龍小姐
電話:13802985061
地址:廣州市天河區體育西路111號建和中心大廈29F
我們常見的游泳池水循環方式有順流式、逆流式。但對于多數初涉泳池行業的人來說,游泳池水循環方式可能還是比較陌生的字眼。今天小編就詳細的給大家介紹游泳池水循環常見的幾種方式及特點。

一、循環方式的選擇
泳池最常用的循環方式有兩種,一種是順流式,一種是逆流式,由于兩種方式具有不同的技術特點,因此在實際工程中,必須結合泳池的使用用途,作出正確的選擇,切忌生搬硬套。
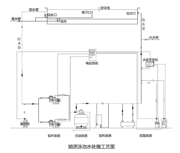
順流式采用泳池兩側池壁進水,池底深端回水的循環方式,具體做法是:在兩側每條泳道線正下方池壁的正中央設置進水口,在池底最深端設置若干回水口,進水口的數量是泳道線數量的2倍,回水口數量等于泳道線的數量。順流式實際上是模擬自然界河流的運動方式,實現處理過的水推動著使用過的水(即新水推舊水)進入水處理設備,從而避免了新水與舊水的混合。
采用順流式的優點:①管線布置簡單,不用設置平衡水箱等多余的設備,管理維護難度低,投資費用省;②不用額外地增加循環水量,水處理系統效率高,運行費用省;③溢水溝溢水不回用,池水表面的漂浮物可經池岸溢水溝排出泳池,從根本上杜絕了二次污染源。
采用順流式的主要缺點:是由于進、回水口的數量較少,泳池整體水質(水溫、余氯、濁度)不如逆流式均勻;

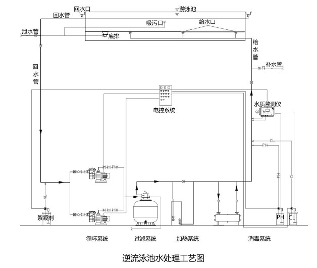
逆流式采用池底進水,池岸溢水回水的循環方式,具體做法是在池底每條泳道線的投影線上,每3米設置一個布水口,同時在泳池兩側設置溢流溝,它實際上是采取上移式布水方式,即從池底進水向水面推進,最后經池岸溢流槽返回水處理機房。
采用逆流式的優點:①泳池整體水質(水溫、余氯、濁度)較順流式更為均勻;② 池邊水面的漂浮物可經池岸溢流槽收集反回水處理系統。
采用逆流式的缺點:①管線布置十分復雜,需設置平衡水箱等配套設備,管理維護工作量大,投資費用比順流式大的多;②池邊的水未經使用就經池岸溢流槽返回水處理機房(形成短流),而池中心的水必須經過幾個循環周期,才能返回水處理機房,在游泳人數猛增,池水污染量增加的情況下,水處理效率遠低于順流式;③泳者經常把溢流槽當做痰槽,清理工作十分困難,對池水的二次污染十分嚴重;
綜合順流式和逆流式的優缺點,可以得出如下結論:①使用人數少、檔次高的星級酒店、高檔會所及奧林匹克比賽場館,由于使用人數少,池水污染源少,同時使用者對泳池整體水質均勻度要求較高,因而宜采用逆流式循環,②游泳人數多、對外開放的社會性游泳館,由于使用人數多,池水含污量較大,水處理系統的目標是必須在一個循環周期內迅速降低整體泳池的含污量,因而宜采用順流式循環。

二、如何解決泳池中的尿素超標問題
對外開放的公眾性游泳池最主要的污染是尿素、溶解酶、溶解蛋白等有機污染,這類情況在小學、中學游泳館中尤為突出。然而常規壓力式沙缸、沙罐過濾設備根本無法去除這些污染,因而必須每天向泳池中補充3%-5%的新水來稀釋有機污染的濃度,在水資源日趨緊張的今天,這種辦法必須禁止。
在水處理系統設計中,解決尿素超標問題有兩個途徑:一是在水處理系統中配置臭氧設備,生產O3強氧化劑,充分氧化分解池水中的有機污染;二是在保持池水余氯濃度的同時,提高池水中溶解氧的濃度,使池水中的次氯酸隨時激發新生態氧[O],利用新生態氧[O]的強氧化性去氧化池水中的有機污染。